കുറഞ്ഞ ചിലവിൽ മൂന്ന് മുറികളുമായി കേരള സ്റ്റൈൽ വീട്
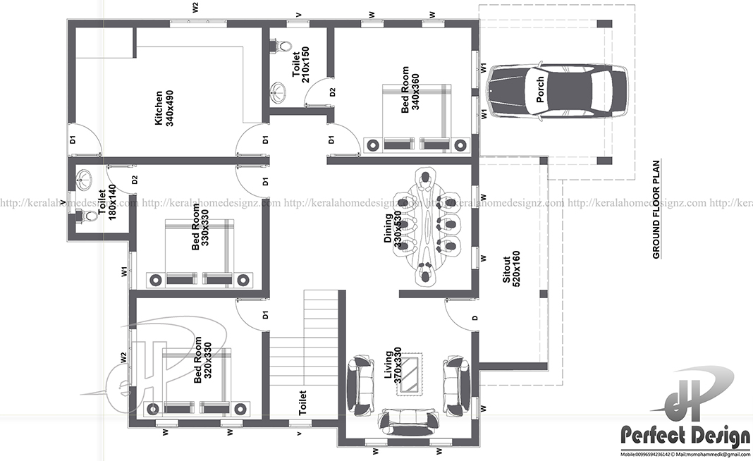
ഒറ്റ നിലയിൽ കേരള സ്റ്റൈലിൽ ഒരു വീട് നിർമിക്കാം.മൂന്നു ബെഡ്റൂം അടങ്ങിയ ഈ വീടിനു 1237 sqft വിസ്തീർണം ആണ് ഉള്ളത്.മൂന്ന് ബെഡ് റൂമുകൾക്ക് ഒപ്പവും ബാത്രൂം അറ്റാച്ഡ് ആണ്.ഇത് കൂടാതെ ഒരു കോമൺ ബാത്ത്റൂമും ഉണ്ട്.ഇതിനു പ്രതീക്ഷിക്കുന്ന നിർമാണ ചിലവ് 17 ലക്ഷം രൂപ ആണ്.വീടിന്റെ പ്ലാനും കൂടുതൽ വിവരങ്ങളും താഴെ നൽകുന്നു.
Advertisement

specifications:-
Ground Floor is designed in 115 Square meters (1237 Sq.Ft)
- Car porch
- Sit out
- Living room
- Dining hall
- Bedrooms : 3
- Toilet attached: 2
- Common toilet 1
- Kitchen
- Work area
- Stair

FOR MORE KERALA HOME DESIGNS
This plan is designed in a manner for the latest interior designs. This plan is well executed by Mohammed Kutty. For further details contact the designer.
Perfect Design
Riyadh – K.S.A
Mail: [email protected]
Mob:00966594236142
What’s App: 00966594236142
വിവരങ്ങൾക്ക് കടപ്പാട് : കേരള ഹോം ഡിസൈൻസ്