ചെറിയ ബഡ്ജറ്റിൽ നിർമിച്ച ഒരു മോഡേൺ വീട്
വീട് എല്ലാവരുടെയും ജീവിതത്തിലെ ഒരു സ്വപ്നം തന്നെ ആണ്.നമുക്ക് ഇന്ന് ട്രെൻഡിങ് കേരളയുടെ ഹോം സെഗ്മെന്റിൽ കുറഞ്ഞ ചിലവിൽ നിർമിച്ച ഒരു മോഡേൺ വീടിന്റെ പ്ലാനും വിശദമായ വിവരങ്ങളും പരിചയപ്പെടാം.
Advertisement

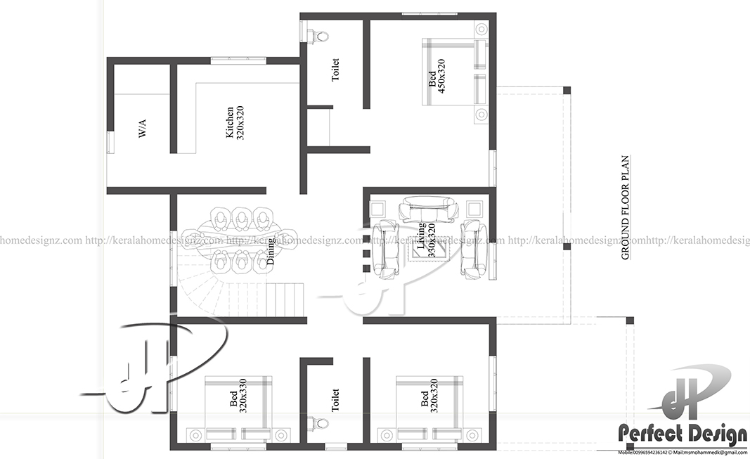
ഒറ്റ ഫ്ലോറിൽ നിർമിച്ചിരിക്കുന്ന ഈ വീട് 1152 square ft ഉണ്ട് .3 ബെഡ്റൂം വിത്ത് അറ്റാച്ച് ബാത്റൂം,കൂടെ ഒരു കോമൺ ആയ ബാത്റൂം ഉള്പെട്ട ഈ വീടിന്റെ നിർമാണ ചിലവ് 15 ലക്ഷം രൂപയോളം ആണ്.
പ്ലാൻ :

Specifications:-
Ground Floor is designed in 107 Square meters (1152 Sq.Ft)
- Car porch
- Sit out
- Living room
- Dining hall
- Bedrooms : 3
- Toilet attached: 1
- Common toilet 1
- Kitchen
- Work area
- Stair
കൂടുതൽ വിവരങ്ങൾക്ക് നിങ്ങൾക്ക് ഇതിന്റെ ഡിസൈനറും ആയി കോൺടാക്ട് ചെയ്യാം.
For further details contact the designer.
Perfect Design
Riyadh – K.S.A
Mail :[email protected]
Mob:00966594236142