പ്രകൃതിയോട് ഇണങ്ങി ചേർന്ന് ഒരു 3BHK ഭവനം
വിവിധ ഡിസൈനുകളിലുള്ള വീടുകൾ നിലവിൽ ലഭ്യമാണെങ്കിലും,1450 ചതുരശ്രയടിയിൽ പ്രകൃതിയോട് ഇണങ്ങിച്ചേരുന്ന ഒരു അതിമനോഹര
ഭവനമാണ് ഇന്നിവിടെ അവതരിപ്പിക്കുന്നത്.ആധുനിക വാസ്തുവിദ്യ ഉപയോഗിച്ചാണ് ഈ ഭവനം പണിതിരിക്കുന്നത്.മുൻവശത്തായി കൂടുതൽ ഏരിയ ഉള്ളതിനാൽ മരങ്ങളും കാണാം.ഇത് വീടിനെ കൂടുതൽ വിശാലമായി പ്രദർശിപ്പിക്കുന്നു.കൊളോണിയൽ മാതൃകയിൽ നിർമ്മിച്ചിരിക്കുന്ന ഈ ഭവനത്തിന് നൽകിയിരിക്കുന്ന വെള്ളനിറം കൂടുതൽ സമാധാനാന്തരീക്ഷവും നൽകുന്നു.
Advertisement
ചെരിഞ്ഞ മേൽക്കൂരയും മുകളിലെ ഡോർമെൻ ജനലുകളും കൂടുതൽ മനോഹരമാക്കുന്നു. കൃത്യമായ അളവിൽ സൂര്യപ്രകാശം വീട്ടിലേക്ക് പ്രവേശിക്കുന്നതിനും ഇത് സഹായിക്കുന്നു.എലിവേഷനും , പ്ലെയിൻ മെറ്റൽ സ്ട്രിപ്പും ഈ വീടിൻ്റെ മറ്റ് പ്രത്യേകതകളാണ്. ധാരാളം തൂണുകൾ ഇതിൻ്റെ നിർമാണത്തിൽ ഉപയോഗിച്ചിരിക്കുന്നതിനാൽ കൂടുതൽ ഉറപ്പും നൽകുന്നു. 19 ലക്ഷം രൂപയാണ് നിർമാണ ചെലവ്. ഈ വീടിൻ്റെ മറ്റ് സവിശേഷതകൾ താഴെ പറയുന്നു
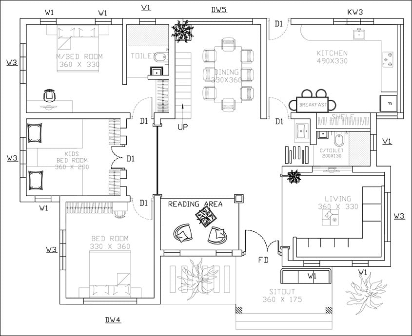
സിറ്റൗട്ട്
ലിവിംഗ് റൂം
ഡൈനിങ്ങ് ഹാൾ
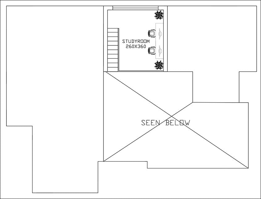
റീഡിങ് റൂം
3 ബെഡ്റൂം
1 അറ്റാച്ച് ബാത്ത്റൂം
1 സാധാരണ ബാത്ത്റൂം
അടുക്കള
സ്റ്റെയർക്കേസ്
പഠന മുറി
എന്നിവയാണ്
മനോഹാരിതയേകുന്ന ഈ 3 BHK ഭവനത്തിന്റെ കൂടുതൽ ചിത്രങ്ങളും പ്ലാനും ഇതോടൊപ്പം ഉൾപ്പെടുത്തിയിട്ടുണ്ട്
