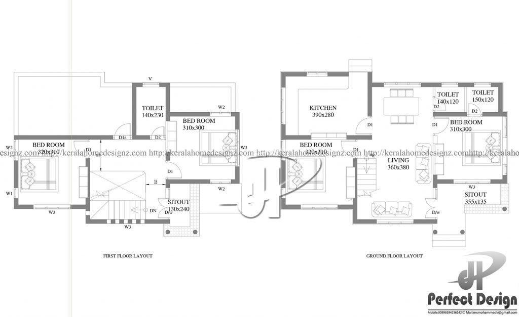
19-ലക്ഷം രൂപയ്ക് നിർമിച്ച ഇരുനില വീട്
ട്രെൻഡിങ് കേരളയുടെ ഹോം സെഗ്മെന്റിൽ ഒരു ബഡ്ജറ്റ് ഹോം ആണ് പരിചയപ്പെടുത്തുന്നത്.4 ബെഡ്റൂമുകൾ അടങ്ങിയ ഈ ഇരു നിലവീടിന്റെ നിർമാണ ചിലവ് 19-ലക്ഷം രൂപആണ്.നാല് ബെഡ്റൂമുകളുടെയും കൂടെ ബാത്രൂം ഉണ്ട്.കൂടാതെ ഒരു ബാത്രൂം കോമൺ ആയും ഉണ്ട്.ഗ്രൗണ്ട് ഫ്ലോർ 732 Sq.Ft ഉം ഫസ്റ്റ് ഫ്ലോർ 538 Sq.Ft ഉം ആണ്.
Advertisement

ഫസ്റ്റ് ഫ്ലോർ
- സിറ്റൗട്ട്
- ലിവിങ് റൂം
- ഡൈനിങ്ങ് ഹാൾ
- ബെഡ്റൂം :2
- കോമൺ ബാത്രൂം :1
- കിച്ചൻ
- സ്റ്റെയർ
ആദ്യ നില
- ബാൽക്കണി
- അപ്പർ ലിവിങ്
- ബെഡ്റൂം :2
- കോമൺ ടോയ്ലറ്റ് 2

ഡിസൈനർ :
Perfect Design
Riyadh – K.S.A
Mail :[email protected]
Mob:00966594236142
ചിതങ്ങൾ കടപ്പാട് : keralahomedesignz