1001 സ്ക്വയര് ഫീറ്റില് മനോഹരമായ ഒറ്റ നില വീട്, ചെലവ് 13.5 ലക്ഷം , പ്ലാനും കോണ്ടാക്റ്റ് ഡീറ്റെയ്ല്സും സഹിതം
The best plan for a single storied house in 1001 square feet with 13.5 Lakh construction cost
Advertisement
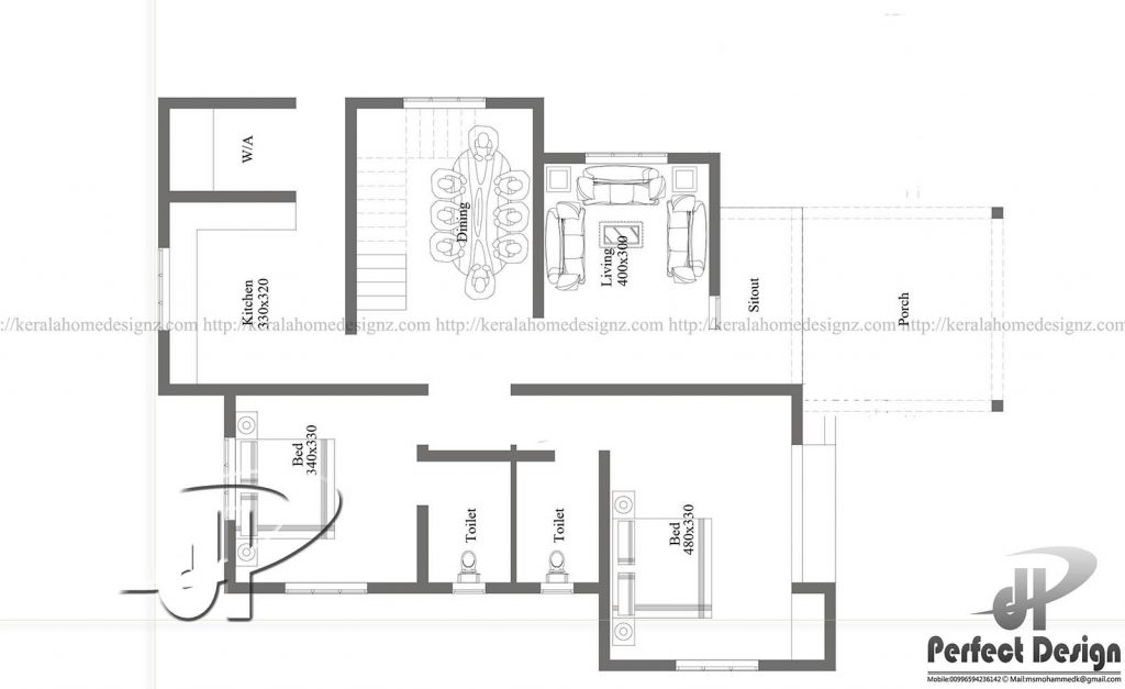
The great designer Muhammed Kutty has introduced a house plan for ordinary peoples. He is an interior designer who works in Riyadh. He introduces house plans with the latest interior designs. Recently he has constructed a single storied modern Kerala style house in 1001 square feet. The overall construction cost of the house plan is 13.5 Lakh. The cost of construction and materials may vary. To The house is having a car porch, sit out, 2 bedrooms with attached bathroom, dining hall, living area, kitchen and a work area. This plan will be very effective in this price range.
They have used the latest technology and interior plans. The plan will give us a clear idea about how to arrange the home appliances properly. The app has provided the actual dimensions of each room, kitchen, dining room, car porch and the work area. This single storied house is more attractive and looks beautiful with the interior designs and the arrangements of the furniture and other appliances in a limited space.
The project has implemented by Muhammed Kutty and he accomplished the plan very effectively. The plan will give us a clear view of the house without any confusion.
This latest house plan layout is significantly different than the other common house plans. The right fixtures and fittings can make big differences in designing a house and it will be very beautiful by looks.

Those who are interested to know the further details about the designs, the contact details of the designer is provided with this post;
Muhammed Kutty
Perfect Design
Riyadh
E-mail:- [email protected]
Mobile: – 00966594236142
COURTESY: PERFECT DESIGNS