നാല് സെന്റിൽ നിർമിച്ച ഇരുനില വീട്
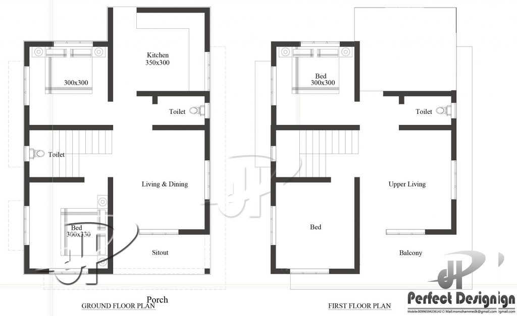
1315 square ൽ മലപ്പുറത്തു നിമിച്ച ഇരു നില വീട്.4 ബെഡ്റൂമുകൾ അടക്കം നിർമിച്ച ഈ വീടിനു 17 ലക്ഷം രൂപ ആണ് നിർമാണ ചിലവ്.നാല് റൂമുകളുടെ കൂടെയും അറ്റാച്ച് ബാത്രൂം സൗകര്യവും ഉള്പെടുത്തിയിട്ടുണ്ട്.പുതിയ മോഡലിൽ നിർമിച്ച ഈ വീട് സ്പേസിന്റെ കാര്യത്തിൽ ഒട്ടും കുറവ് വരുത്തിയിട്ടില്ല.വീടിന്റെ കൂടുതൽ വിവരങ്ങൾ താഴെ നൽകുന്നു.
Advertisement

താഴെത്തെ നില 732 Sq.Ft ആണ്..അതിൽ
- Sit out
- Living room
- Dining hall
- Bedrooms : 2
- Common toilet
- Kitchen
- Staircase
എന്നിവ ഉൾക്കൊള്ളിച്ചിരിക്കുന്നു.
ആദ്യ നില 581 Sq.Ft ഉണ്ട്
- Balcony
- Upper living
- Bedrooms :2
- Common toilet
എന്നീ സൗകര്യങ്ങൾ ആദ്യ നിലയിൽ ഉണ്ട്

വീടിന്റെ ഡിസൈൻ :
Perfect Design
Riyadh – K.S.A
Mail :[email protected]
Mob:00966594236142
The copyright of the image and data used in this post will belong to their respective owners.